About the Design Studio
Tuckey Design Studio (UK) explores the cultural, social and emotional connections formed with buildings over time. They seek to transform structures, through adaptive reuse of existing buildings or sustainable new construction, into places that serve their occupants for generations.
Rammed Earth House
- Sector: Residential
- Client: Private
- Location: Wiltshire, England
- Area: 810 sq m
- Collaborators: Todhunter Earle Interiors, Stonewood Builders (Contractor), Lehm Ton Erde (Rammed earth consultant)
Recently completed in the Wiltshire countryside is a pioneering new build homestead that’s relearnt an ancient building method.
Located on a former brickworks, the series of buildings has risen upon an area of clay rich soil which, alongside recycled aggregate from demolished outbuildings, forms the composition for the rammed earth. The home is one of a few examples in the UK that utilize unstablised rammed earth; a circular construction method involving no cement in the mix.
Castle-like walls inexorably bind the building to its landscape, forming walled gardens and visually offset by Douglas fir and oak timber frames that contrast with the monolithic earth structure. Distinguishing elements include decorative niches embedded in the walls, a spiral staircase, rammed earth flooring in the snug and a ‘storm terrace’ from which to observe the dramatic cloud formations over the West country landscape.
This house should also make clever use of the inside/outside spaces, particularly for entertaining, and feel intimate enough for two, but it could host 20.

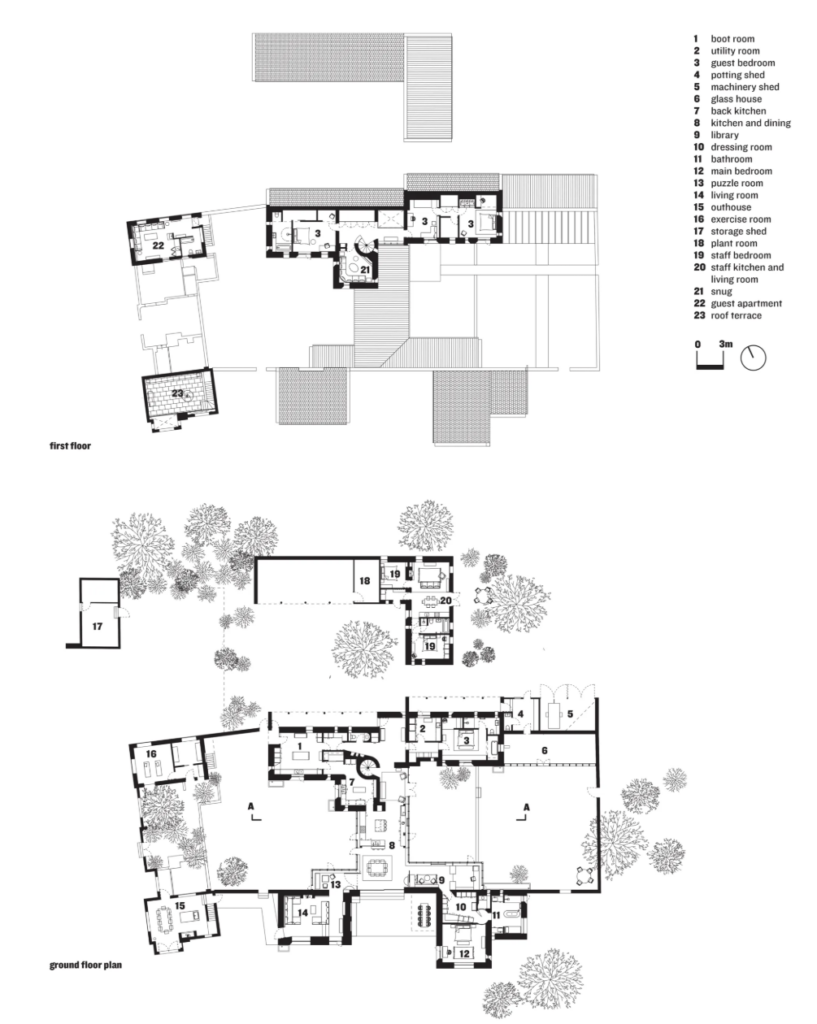
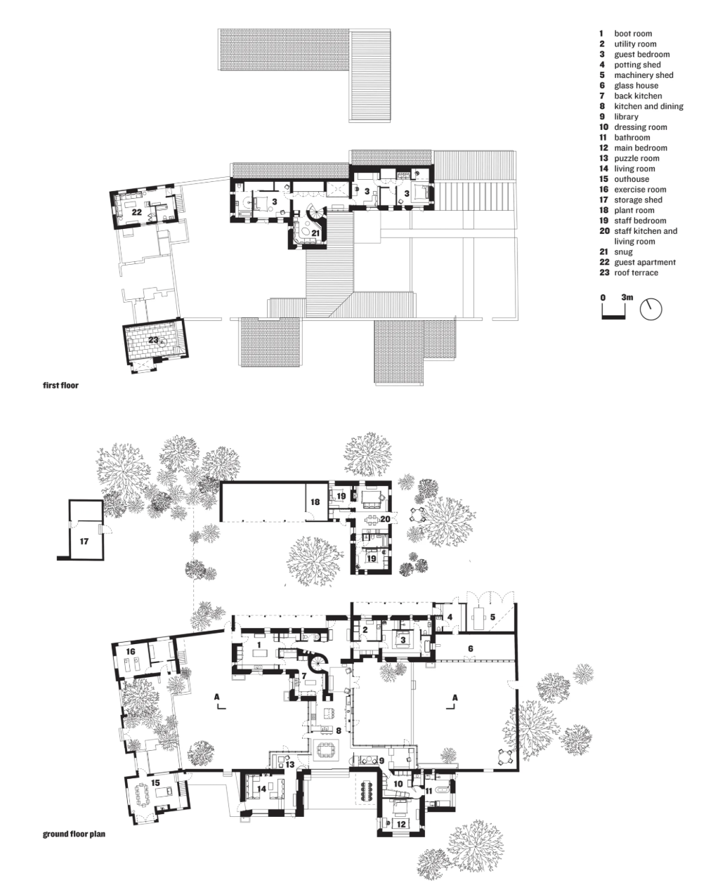
The result is an H‑shaped plan incorporating five bedrooms, with an additional two in the staff quarters across the drive, and a separate flat on the first floor of a Victorian house that was otherwise mostly demolished to make way for the new homestead. There is a boot room to support equestrian pursuits; a puzzle room for playing games; two walled gardens; and Bachelardian snugs, nooks and landings for lounging and socializing outside the living and dining room areas.


At 810 sq m, sat on a 63-acre estate, the property is large; yet the studio’s clever design and high-spec yet tactile and organic materials afford a comfortably intimate feel.
Sourcing material from the site
When faced with a spectacular view, architects often find it hard to resist the temptation to make it the central focus; think expansive glazing that makes rolling hills visible from every point. But Tuckey believes there can be too much of a good thing: that a view is best when rationed and mediated. “You need to pace it,” he says. “You can have one moment where you get it all, but it also needs to be sliced up and served in small chunks.”
The notion of imperfection set the tone for the project’s most significant design decision: the use of rammed earth. When the client demolished some buildings on the site, an old brickworks, they discovered clay underneath. And rammed earth is durable and energy efficient, also forgiving.


Refining the rammed earth mix
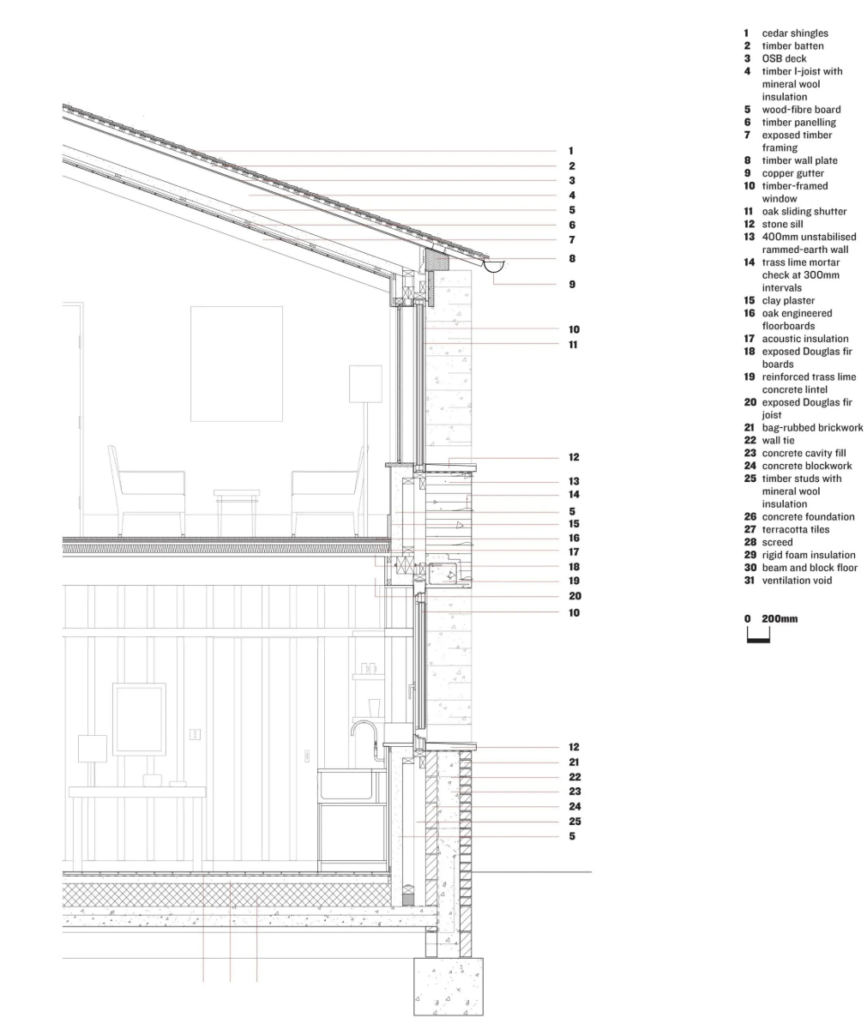
The process is as follows. First you dig up the clay, then you dry it for anywhere between a few weeks and six months – in this case, two or three – before crushing it into a powder. When you’re ready to build, the clay is mixed with an aggregate, which can be gravel or broken-up bricks, blockwork or concrete. Here, the demolished buildings on the site were the first option, but when that didn’t provide the right consistency, gravel was sourced from nearby to correct the balance. The material was then combined with water to form a “dry, biscuity consistency”. The clay and aggregate mix requires 7 per cent water content for optimal results
This was tipped into formwork and compacted from 150mm to about 75mm for the external walls and 100mm to 50mm for the internal ones, to make them tighter and less prone to dusting. The external walls are stratified with layers of pozzolanic lime mortar that act as an erosion check – ‘speed bumps’ for falling water – every 300mm, and every layer on the corners. The most exposed walls are tiled with stone for additional strength. Walls are typically 400mm thick, but range up to a meter, requiring no joints for more than 100m in length.




A rich interior palette and hidden technology
Together, the team created features ranging from a wooden spiral staircase to enormous pivoting doors. Creative freedom was balanced with a common understanding of the atmosphere required. The end result comprises spaces that vary from double-height atriums to cozy nooks, creating a sense of discovery and variety. Recessed niches for objects echo the benches carved into exterior walls. The palette is rich and tactile: earth walls finished with a muted, protective casein coating, limestone, oak, copper and clay plaster.
While craft and materiality are the house’s most evident characteristics, it is far from arcane. A lot of technology is hidden within the earthen structure. There’s a fully automated lighting system, a ground-source heat pump for hot water and heating, a photovoltaic slate roof to generate electricity, and troughs harvesting rainwater for watering the gardening – all of which fulfil the client’s expectation of high functionality and sustainability.



Inspiration
In terms of the house’s eco credentials, it was unable to obtain Passivhaus certification on account of having too many junctions – perhaps an indication of it being, by most standards, an exceptionally large house for two people. Its true eco legacy, within the context of a country that faces dual housing and climate crises, is the range of possibilities it opens for wider applications of unstabilised rammed earth. Tuckey Design Studio is now working with Stonewood to explore ways of using prefabricated rammed-earth components in a terraced housing project.
Rauch’s company, Lehm Ton Erde, produces such elements in Austria, but he has long maintained that transporting panels across great distances offsets the carbon savings made by using the material in the first place. Instead, Rauch promotes ‘field factories’ situated as close to building sites as possible – a little like Rammed Earth House’s on‑site laboratory, but standardised and at a larger scale. This house marks an important step in demonstrating the viability of unstabilised rammed‑earth construction in the UK.

