
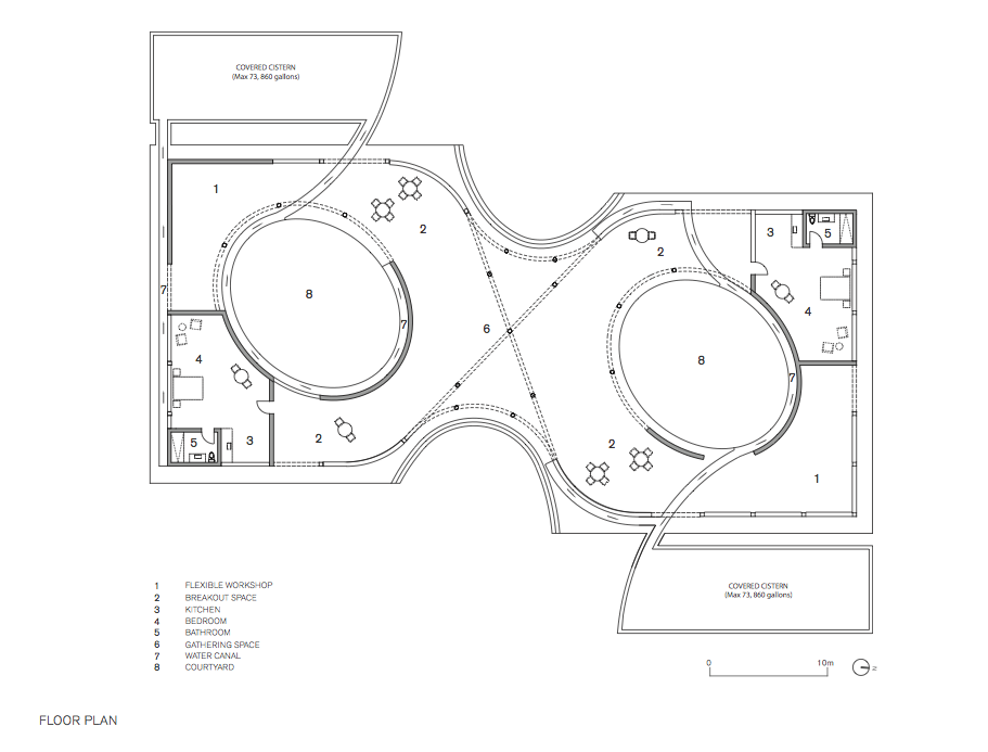
The cultural hub designed by Toshiko Mori was completed in 2015 in the rural village of Sinthian, Senegal. The project was developed with the Josef and Anni Albers Foundation and the nonprofit American Friends of Le Korsa. The goal of the project was to create a space where art, culture, and community activities could come together in a remote region.


The cultural hub serves many roles for the village and surrounding communities. In addition to housing artists in residence, the building functions as a gathering space, performance venue, workshop space, and community center for cultural exchange and education. The building also supports programs such as agricultural training, public meetings, and local events, helping strengthen connections between villages in the region.


The architecture responds directly to the climate and local building traditions. The building is constructed mainly from locally sourced materials such as compressed earth blocks, bamboo, and thatch. These materials were chosen because they are sustainable and reflect the construction techniques already used in the region. Local workers and builders were also involved in the construction process, which helped transfer building knowledge and create a stronger sense of community ownership.


One of the most distinctive features of the project is its large curved roof. The design reinterprets the traditional pitched roof used in local architecture by inverting it, creating shaded spaces and courtyards around the building. The roof also plays an important environmental role by collecting rainwater and storing it in cisterns. This water can then be used during the long dry season, which is an important resource for the village.


Passive climate strategies are also central to the design. Deep overhangs, open courtyards, and permeable earth brick walls help create natural ventilation and shaded outdoor spaces, keeping the building cool in the hot climate. Because of this passive design approach, the building can remain comfortable without relying heavily on mechanical systems.

What makes this cultural hub especially meaningful is how it connects architecture with social impact. The project supports art and creativity while also addressing practical needs such as water collection, education, and community gathering spaces. By combining local materials, climate-responsive design, and cultural programming, the project shows how architecture can support rural communities in meaningful ways.


Overall, the cultural hub demonstrates how architecture can go beyond simply creating buildings. It becomes a platform for collaboration, cultural exchange, and sustainable development, connecting a small rural village to a wider global network through art and design.
Sources
Toshiko Mori Architect — Project page: https://tmarch.com/thread
Dezeen article: https://www.dezeen.com/2017/01/25/toshiko-mori-compressed-earth-bamboo-thatch-cultural-centre-senegal-africa-architecture/
ArchDaily project: https://www.archdaily.com/608096/new-artist-residency-in-senegal-toshiko-mori
Dovetail Magazine feature: https://dovetailmag.com/2023/01/destination-thread/

















































Location: Diriyah, Saudi Arabia
From This Earth Installation is a temporary installation by Karim+Elias in Diriyah, Saudi Arabia. Completed in 2024, the 220 m² project was presented as part of Layali Diriyah and consists of a series of porous earthen screens assembled from more than 1,400 hand-sculpted spheres. Rather than treating earth as a heavy and continuous wall, the installation reimagines it as a modular, open-air spatial filter. In this sense, the project is significant not only as an installation, but also as a contemporary experiment in earthen material practice.
The project is deeply tied to its location. Diriyah is described by its official destination platform as the “City of Earth,” and it is presented as the birthplace of Saudi Arabia. Within this context, From This Earth operates as more than a temporary pavilion: it becomes a material response to a place historically associated with earthen building traditions. The architects state that the work celebrates Diriyah’s craft of building with earth, so the project should be understood as a contemporary reinterpretation of local architectural memory rather than as an abstract sculptural object placed in a neutral site.
Karim+Elias describe their broader practice as a contemporary exploration of “sculpting with sand,” using locally sourced earth, clay, and water in custom-made moulds. In From This Earth, this material approach appears through a system of over 1,400 hand-sculpted modular spheres made from local material and stacked into earthen screens. This construction logic is important because it shifts earth away from its more familiar role as a monolithic mass or thick wall. Here, earth becomes a repeated unit, a surface condition, and a space-making device. The project therefore demonstrates how traditional earth-based craft can be translated into a contemporary modular language.
The installation’s spatial effect comes from porosity. The stacked spherical modules create filtered views, partial enclosure, and changing patterns of light and shadow. Designlab Experience describes the screens as evoking the traditional mashrabiya and recalling Diriyah’s vernacular triangular wind openings and rooftop silhouettes. Because of this, the project does not simply represent earthen architecture visually; it performs some of its environmental and perceptual qualities. Air, light, depth, and visibility are mediated through the earthen surface, allowing visitors to experience earth not only as a material, but also as an atmospheric interface.
This project is relevant to contemporary earthen architecture because it expands the definition of what an earthen work can be. It does not reproduce a traditional mud structure directly, nor does it use earth only for symbolic effect. Instead, it repositions earthen craft within a temporary cultural installation and demonstrates that earth can function as a contemporary design medium. From This Earth shows that earthen practice today can move across architecture, installation, art, and public event design while still remaining grounded in local material and cultural context.