Donald Clarence Judd (1928–1994) was an American artist best known for his role in the development of Minimalism. His work has had lasting influence on art, architecture, and design.

Judd was born in Excelsior Springs, Missouri. He studied philosophy and art history at Columbia University and later painting at the Art Students League in New York. He worked as a painter until the early 1960s, when he began producing three-dimensional works that challenged conventional definitions of sculpture. These works emphasized repetition, clarity, and structural logic rather than representation.
By the early 1970s Judd had become dissatisfied with the temporary nature of gallery exhibitions. He believed art needed a permanent and carefully defined setting. In 1971 he moved to Marfa, Texas, where he began purchasing buildings and land in order to establish long-term installations under his own direction.

In Marfa, adobe was part of the existing building environment. Rather than bringing industrial construction methods from New York, Judd worked with local builders, reused salvaged adobe bricks, and sometimes produced bricks on site.
For Judd, permanence was not only about duration but about spatial stability. Works were meant to remain in fixed positions, in spaces with consistent proportions and light. Adobe, as a load-bearing and materially durable construction system, allowed the architecture itself to remain stable over time. The walls were not temporary partitions but structural enclosures, creating fixed spatial conditions for installation.

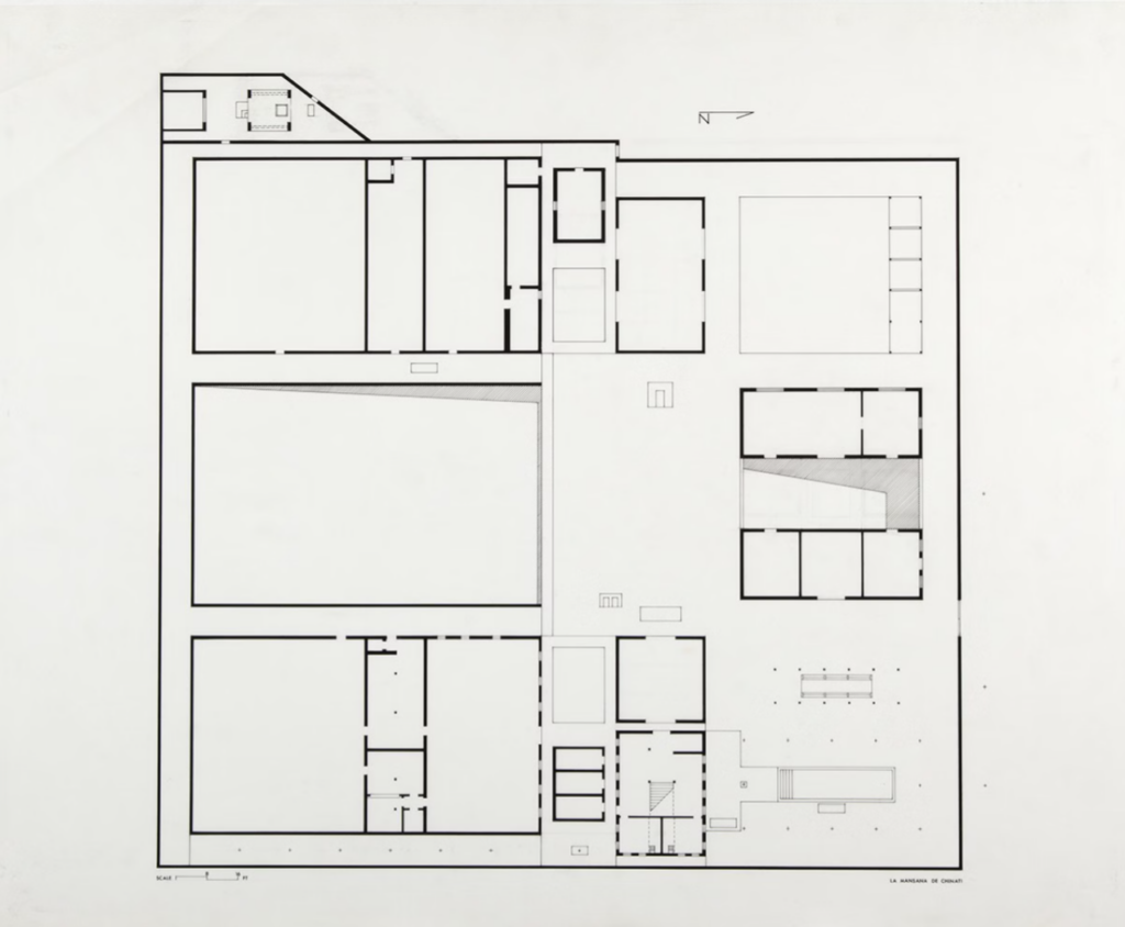
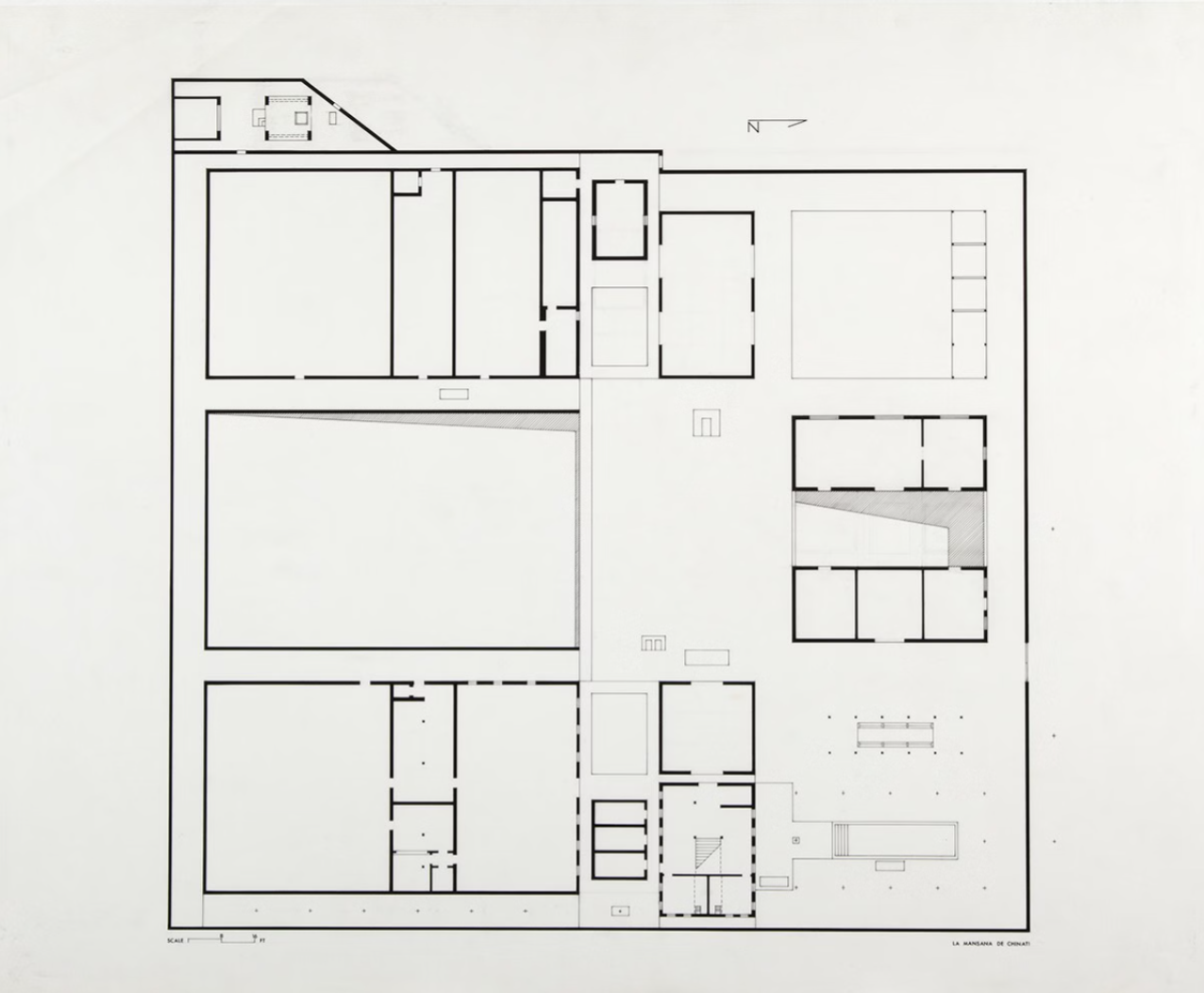
One of the clearest examples of this approach is La Mansana de Chinati, commonly known as “The Block,” located in downtown Marfa. Judd began to install work in the east building of the Block in 1973. Instead of demolishing the three existing buildings, he altered them to suit the purposes of living and working. He constructed a 9-foot adobe wall on the south side of the property using existing adobe bricks from the former Toltec Motel and Virginia Hotel.


Between 1973 and 1979 the remainder of the exterior wall enclosing the property was constructed, totaling 1,441 feet and approximately 30,000 bricks. Within this perimeter, a second U-shaped wall further articulated the courtyard. Together, these walls establish a sequence of outdoor rooms and reshape the relationship between street and interior space. Openings are carefully proportioned, and the thickness of the walls creates deep recesses and strong shadow lines.



© 2024 Judd Foundation / JASPER, Tokyo E5493
The Block accommodates residence, studio space, a library, and open courtyard areas. Domestic life and artistic production are not separated but integrated within a continuous spatial framework. Adobe functions simultaneously as structure, boundary, and climatic mediator in the desert environment. The geometry remains restrained—rectilinear volumes, planar walls, orthogonal alignments—yet the earthen material introduces weight and physical presence distinct from Judd’s earlier industrial works.


Another important project is the adaptation of what is now called the Chamberlain Building in central Marfa. Here Judd transformed former warehouse structures to house the permanent installation of works by John Chamberlain. Although the existing buildings were not constructed entirely of adobe, Judd introduced adobe elements to clarify enclosure and spatial hierarchy, including the construction of a new west-end wall. Roofs were rebuilt, skylights installed, and openings adjusted to refine the quality and distribution of light.



Across his projects in Marfa, adobe was used as a structural and spatial material rather than as decorative reference. It serves as a means of achieving permanence and spatial definition. Its thickness reinforces enclosure; its method of construction shows labor and process; its mass anchors the buildings to the desert landscape. These interventions create measured and continuous spatial fields in which art, habitation, and landscape coexist.
