
Project name: thé ATRE SHANJUCHAJING Concept Store
Design: Kooo architects
Completion Year: 2023
Leader designer & Team: Shinya Kojima, Ayaka Kojima, Kotaro Kitakami, Kangxin Wu, Yikxin Lai, Zheming Tian
Project location: 1F E103, Global Financial Center, Sanyuan Bridge, Chaoyang, Beijing, China
Gross built area: 175㎡
Clients: thé ATRE
Materials: Tea-earth Brick, Tea-diatum Mud, solid wood panels, recycled ceramic tile
Kooo Architects was founded in 2015 by Ayaka and Shinya Kojima and has offices in Tokyo and Beijing. They questioned the homogenized materiality and uniform streets as a result of mass production, they aim to carry on and express the beauty and craftsmanship that is particular to that region through incorporating materials and details that can inherit its local climate and cultural background.

In this project, they used custom-made bricks that combine compressed earth with waste tea leaves to create a natural feel inside the Théatre teashop.
The store located in Beijing’s CBD belongs to Chinese brand Théatre, which wanted to immerse guests in the tea-drinking experience. So they created a multi-sensory space featuring tactile, natural materials that contribute to the store’s calming atmosphere.

In an effort to incorporate tea itself into the interior design, Kooo Architects worked with Beijing-based Onearthstudio to develop a “tea-earth brick” that is used to clad 80 per cent of the store’s walls.

The bricks are moulded in a factory using a similar process to the way rammed earth buildings are constructed. This low-carbon process results in an environmentally friendly and non-toxic material with a wide range of natural colours.
Kooo Architects tested different soil types and tea varieties to achieve a range of tones and textures for the bricks whilst maintaining the required strength in the material.




The leaves used are leftovers from tea production that would otherwise be discarded as waste. The crumbled tea leaves create a textured surface that can be seen from up close, while the assembled bricks display natural tonal variations when viewed from a distance. The bricks for this project were produced with compact dimensions of 10 by 10 by 3 centimeters, making them suitable for cladding walls, doors and furnishings.

The brick becomes the basic module for space layout and furniture sizes, so everything is regulated clean and peaceful to the eye. They also made a special L-shape module for the corners so it wraps around smoothly.


A red version of the bricks was chosen for a large volume that forms a focal point within the space, while the surrounding walls feature a more muted yellow tone that contributes to the relaxing feel.

The bricks were also used to create a lintel for the main facade, with folding windows and doors allowing the store to be opened up completely to the outside.

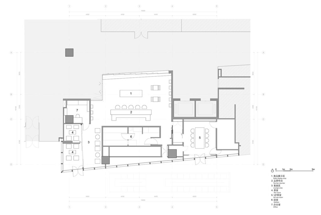
Internally, the space is organized into different functional zones, with a large sales display area and serving counter positioned inside the entrance.


Shelves and counters arranged at different heights are used to display the various products while drawers containing samples allow customers to learn about different types of tea.

To the rear of the store is a private lounge area and a VIP tea room shaped like a traditional tea house with an exposed pitched ceiling. Accessed through a darker preparation area, the naturally lit space is softened by the application of a textured render on the walls and ceiling.


When the shop is eventually overhauled – as retail interiors only last for around three to five years – the bricks can be taken down and reprocessed for use in future stores or go back to nature.
The tea-earth bricks have been shortlisted in the sustainable building product category at the 2024 Dezeen Awards.
References:
Gooood Articles: https://www.gooood.cn/theatre-shanjuchajing-concept-store-by-kooo-architects.htm?lang=en
Dezeen Articles: https://www.dezeen.com/2024/11/04/kooo-architects-theatre-teashop/
TECTURE Articles: https://mag.tecture.jp/project/20250108-theatre-shanjuchajing/
HOUSE COLLECTION: https://hcollection-living.com/storyblog/65b5b723-cbd6-49d3-8bdc-b16a1eaf1f5a/
